一、樓盤整體介紹
西府瑯悅約102畝低密大城。近4/7/9三大地鐵線;坐擁青羊萬達、鵬瑞利、西環廣場等8大醇熟商圈;清水河公園、金沙遺址公園等5大公園為鄰;成都市實驗**(明道校區)/泡桐樹**/石室聯中/樹德實驗等10余學府環繞。西站TOD旁,超級樞紐流量,坐享萬千繁華,高新產業基地加持,打造LOFT靈動躍層。

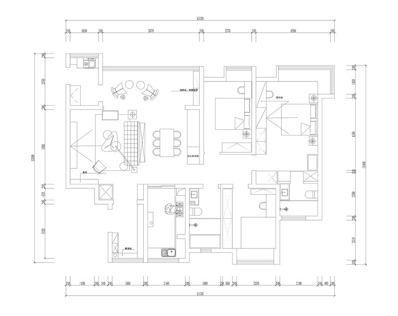
二、戶型圖介紹

1、朝向為南
一套好的戶型,應安排盡可能多的房間朝向為南面,以確保陽光能充足照到屋內。房屋朝向優劣的順序依次為:正南、東南、東、西南、北、西。
2、戶型方方正正
戶型方正不是指整套房子是一個完整的方形,而是各個房間和功能區域的形狀是方正的矩形。戶型方正的房子面積利用率比較高,如果房子的拐角太多的話會占用房屋的使用面積。如果家里人口本來就多,買的面積又不大的情況下,更加要選擇方正的戶型,這樣才會讓實際居住環境看起來較大。
3、房間動靜要分區
一般房子分為動區和靜區兩個區域。動區是人們活動較為頻繁的區域,應該靠近入戶門設;而靜區主要供居住者休息,相對比較安靜,應當盡量布置在戶型內側。動區和靜區要分離,要減少相互之間的干擾。
4、房間大小要適宜
房間太小會讓人感覺很壓抑,不舒適,但是單個房間太大又會讓人感覺空曠,又浪費面積。比如說層高為2.7米的話,33平米的客廳最為舒適;主臥一般采用3.3×3.6、3.6×3.9、3.9×4.2或4.5等幾個尺寸。
三、裝修規劃-裝修效果圖分享




如果房子拿到手后才去看裝修,入住的時間就要推后了;匆匆忙忙定的裝修,也不放心。因此,提前花3~6個月的時間,用來了解考察裝修,根據自己的預算和需求選擇一個更適合的口碑好、工藝好、性價比高、價格透明的裝修公司,才是明智的選擇!
視覺家裝飾作為家裝行業的上市家裝品牌,一直以先進、時尚、向上的生活方式為核心做家裝。作為公司VIP重點服務小區,特推出五套樣板間裝修名額,先到先得,全套方案、VR效果圖、報價,同時成都視覺家的設計團隊也針對融創國賓雅集的三大戶型提前做了許多成熟的設計方案,另外還有樓盤的專屬裝修優惠政策,歡迎預約到店了解溝通。