
姓名:楊凱
從業時間:6年
設計理念:設計的細節將決定生活的品質
代表作品:內江唐匯KTV、西藏翡翠旅行社、仁和春天大道、中海國際社區、派克公館……
下面附上一張設計師和業主的合照,業主很靦腆

本案是都江堰一位業主的自建房,房子面積有260平米,業主喜歡的風格是時尚簡約,有內在的感覺.
設計理念:生活 空間 統一
設計并不專注于復雜的裝飾,而僅是視覺的單純滿足。專業并不割分室內、建筑或是環境,而是冀望空間的流動與融合。這套房子的最終裝修風格定位還是為簡約風格,但它不是一味的簡單,它從形試上表現更多的一種“江湖味”的褪去,是一種品質。第一天與業主碰面時,他就明確告訴我他的房子需要經典、現代的東西,他也喜歡這樣的東西。看過現場之后,而我心中一直涌動的是在此基礎上怎么做得更加自然、和諧,以及平面空間分布更多變化。
下面讓我們來看看這套房子的裝修細節吧!

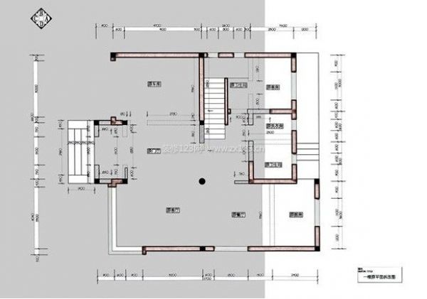
一樓原平面拆改圖

一樓平面圖一樓將原有的車庫加高改為客廳,把原來的入戶門向外推,確保了空間的完整性和寬敞性,將原來面積不大的櫥衛空間均面積最大合理化。一層公共空間沒有做刻意的三維區域分割,只是在地面上按不同使用功能作了不同的拼花處理,顏色采用我個人認為較個性、高雅的灰度咖啡調。

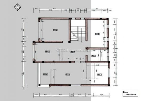
2樓原平面拆改圖

2樓平面圖二樓將原臥室和小起居合拼為一個通間,使陽光更流暢到每個角落。

3樓閣樓平面圖

由于客廳是一樓相對較獨立的空間,所以沒有做任何人為的視聽墻處理,反而在餐廳中央墻面做了一個類似“壁爐”元素的造型來穿插。




“這是生活的房子”我與業主如是說!
客戶感言:我們從到公司第一天和起,朗潤裝飾設計師楊凱在和我們第一次見面交談中給我們的感覺很實在,由于我們是自建房,所以某些地方可能不像樓盤的房子一樣這么規范,這個對設計師的功底是很考究的,楊凱在設計當中能夠站在客戶的角度,根據他的經驗來給我嘛做一些建議,非常的實在,設計上面也是花了很多的心思,因為之前我們是和他在網上聯系過的,看到他給我們的初步設計,還有他們的主材也給我們做了一個整裝的搭配,每個品牌型號都有,和我們的想法很多地方都不謀而合,所以我們覺得,找對人了!因為我們房子比較遠,楊凱還去了現場給我們量房之后再做了詳細的圖紙,細到每一個地漏的位置哦!
朗潤裝飾讓我很放心的是他們有很多特色的東西,像環保協議,顏色識別,都是非常有特色的,現在看,嚴格的監理,還是和我們很多設計理念不謀而合的設計師,還是我們的工長,都給我們踏實的感覺。施工當中,我們也不需要隨時去看著,時間計劃也不用因為裝修而打亂,也還真是他們當初給我說的,省時,省心,省錢哦!