日期:
來源:收集編輯:admin
█ 設計師檔案
![]() |
王雪松
重慶格調裝飾設計工程有限公司專家設計師、高級室內設計師
主要設計作品:龍湖水晶酈城,藍湖郡,江與城,佰富高爾夫,保利高爾夫,龍脈網城,富力維多利亞城,紅十字醫院工裝工程,萬達廣場門面,華潤二十四城,北溫泉9號,魯能新城,金科十年城,吉安苑,融橋城,金科陽光小鎮,華立北泉... |
█ 戶型檔案
樓盤名稱:天湖美鎮
設計風格:新古典主義風格
戶型面積:130平米
戶型點評:本案處于重慶市。設計以歐式新古典風格為主線,體現業主對生活品味的向往和追求。歐式一貫注重細節的設計手法,以小中見大的硬裝為基礎,精巧和諧的軟裝搭配,設計的主題思想還是以家為中心保持十年新鮮,又在新古典本體的空間表現為依托,體現空間感,保留原有建筑的體量感及空間高度,完美的將高貴典雅的歐式風格展現的淋漓盡致,深處其中感覺到華麗異常但又不過份張揚,是一種含蓄、溫馨、舒適的感覺。

原始結構圖

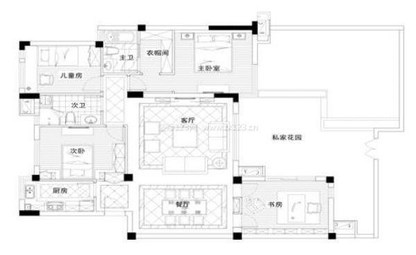
設計平面圖

█ 業主需求
此戶型是父母和一對年輕夫婦和他們可愛的女子,一家3代人共同居住。女主人喜歡浪漫的歐式風格,父親是在建筑方面很資深的老教授,在專業要求方面很高,也因此為了裝修這個房子找了3年的設計師也始終沒有確定下來。因此設計的主題思想是以“家”為中心保持十年新鮮,集中體現空間感,保留原有建筑的立體感及空間高度,減少結構改造。
█ 設計亮點
1、 優雅華麗主臥室
年親的主人是職場的精英,由于現代的工作生活節奏的變快,設計師集中設計了一個獨立的收納空間、獨立的衣帽間是現代年輕人必要的收納系統,臥室通透的空間、自然的采光、空氣的隨意流動、私家花園連為一體,回家足不出戶就可以親吻大自然、暢想大自然賦予的靈氣。


2、 傳統意蘊書房
傳統意蘊的書房給人一種古色古香,寧靜豁達的深淵意境。設計師采用天然花紋的大理石充滿貴氣又不失溫馨,間或穿插的馬賽克圖案又增添了靈動之感,沒有做過多的裝飾,僅僅放置了簡練的歐式桌椅書架、時時隱射出主人的書生一起、為培育下一代學習的理念設計了良好的學習空間。
傳統意蘊的書房給人一種古色古香,寧靜豁達的深淵意境。設計師采用天然花紋的大理石充滿貴氣又不失溫馨,間或穿插的馬賽克圖案又增添了靈動之感,沒有做過多的裝飾,僅僅放置了簡練的歐式桌椅書架、時時隱射出主人的書生一起、為培育下一代學習的理念設計了良好的學習空間。

老人居住理念一般以舒適、簡單、幽靜為主線。設計師考慮到這點所以窗外是一處園林,鳥籠在隨手可及地方、主要加入了穩定的靜置的色彩、老人除了休閑,休息同樣不可忽視、壁紙、柔和的暖光、處處體現設計師以孝為先的理念、歐式的線條畫框為老人收集老照片提供了很好的保存方式、又迎合了年親主人風格的基本協調。

小主人是一位可愛活潑的小女孩,喜歡看海、海的藍色、海的浪漫成為了我們主要的設計元素,所以特別在衣柜的設計上加入了地中海色調,暢聽大海的韻味。

5、 簡潔適用衛浴及廚房
廚房以女主人身高來考慮人體工程學,房間內每個餐具與器具都在她的掌控之中,帶來無窮的生活快樂,把廚藝做為一種藝術,保證家人的健康,設計師在色調上保持清爽,身后加了一面大鏡子,使廚房更大寬闊大氣。衛生間是極具現代風格的另一個空間,簡潔大氣。設計師沒有被風格所束縛,在功能性特別的衛生間選擇了現代風格,以最大限度地保證其舒適性。水龍頭、馬桶的靜音設計、柔和的燈光、暖暖的淋浴、輕輕的拍打主人疲倦的身軀、讓其置身與靜止的現代空間、霎時放松開來、一天的倦意瞬間化為烏有。
廚房以女主人身高來考慮人體工程學,房間內每個餐具與器具都在她的掌控之中,帶來無窮的生活快樂,把廚藝做為一種藝術,保證家人的健康,設計師在色調上保持清爽,身后加了一面大鏡子,使廚房更大寬闊大氣。衛生間是極具現代風格的另一個空間,簡潔大氣。設計師沒有被風格所束縛,在功能性特別的衛生間選擇了現代風格,以最大限度地保證其舒適性。水龍頭、馬桶的靜音設計、柔和的燈光、暖暖的淋浴、輕輕的拍打主人疲倦的身軀、讓其置身與靜止的現代空間、霎時放松開來、一天的倦意瞬間化為烏有。


主要用材有米白色混油、墻紙、馬賽克、仿古磚、大理石、實木地板等,主材造價20萬,家具及配飾15萬,整體工程造價每平方2000元。
