日期:
來源:購房網收集編輯:admin
城投置地天湖岸理想的生活需要一點愛和夢想,這是我漂泊的動力
城投置地天湖岸,將空間融合到一起,利用率高,視覺上也更顯寬綽。城投置地天湖岸建筑面積164348.43㎡,戶型為127平-251平,綠化率44%

E戶型(4室2廳,162平,東)

A戶型(3室2廳,127平,東)

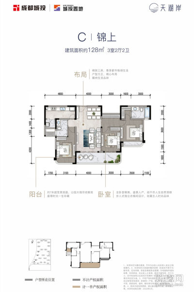
C戶型(3室2廳,128平,東)
產權年限是指房屋建筑產權的歸屬年限,包括:民用住宅建筑,商用建筑,工業用建筑。城投置地天湖岸產權年限普通住宅:70年;大平層:70年,周邊介紹城投置地天湖岸區域位于金牛區,金牛區隸屬于四川省成都市,是成都市的中心城區,中心位置位于北緯30.29°,東經104.32°,全區總面積108平方千米。截至2020年末,金牛區轄13個街道,常住人口1265398人。金牛區是天府文化發端的根基,因境內的金牛壩而得名。區內有金沙遺址為代表的古蜀文化遺址、有見證巴蜀文明與中原文化開放融合的金牛古道、有*個科學考古發掘的地上皇陵前蜀永陵。老官山出土的漢代提花織機模型達到了蜀錦技術的*,延續1000多年的九里堤開創了成都“兩江環抱”的城市格局,世界最早紙幣交子制造地凈眾寺蘊藏著厚重的歷史文化。 2020年,金牛區實現地區生產總值1329.9億元,按可比價計算,同比增長2.8%。,地址成都市金牛區天回鎮街道杜家碾社區利民路。
都說時間和市場是*的試金石,備受青睞的產品,一定經得起客戶及市場的驗證。,區域金牛區。