城投置地梧桐集小區綠化怎么樣?天然氧吧和空氣凈化器。這里,空氣負氧離子遠遠高于繁華地區。城投置地梧桐集綠化率38%。
每個城市都有屬于它獨特的建筑代表,占據城市的優渥位置呈現在廣大市民的視線內。每個板塊也會有那么幾個杰出的作品,依靠著高端住宅的基因,收獲群眾的青睞,滿足群眾對美好生活的向往,打造舒適的高品質生活家園。城投置地梧桐集建筑形式高層、洋房、疊拼,區域金牛區,建筑面積199958.38 ㎡。
遵循以人為本的設計原則,創造性提出精工之道——實用、舒適、健康、科技、安全。從房屋整體空間布局、功能分區,細節服務呈現給業主。城投置地梧桐集物業費3.2元/㎡/月,預計2021-11-30 交房 15號樓,6號樓,16號樓,7號樓,14號樓,周邊介紹城投置地梧桐集區域,金牛區,隸屬于四川省成都市,是成都市的中心城區,中心位置位于北緯30.29°,東經104.32°,全區總面積108平方千米。截至2020年末,金牛區轄13個街道,常住人口1265398人。金牛區是天府文化發端的根基,因境內的金牛壩而得名。區內有金沙遺址為代表的古蜀文化遺址、有見證巴蜀文明與中原文化開放融合的金牛古道、有*個科學考古發掘的地上皇陵前蜀永陵。老官山出土的漢代提花織機模型達到了蜀錦技術的*,延續1000多年的九里堤開創了成都“兩江環抱”的城市格局,世界最早紙幣交子制造地凈眾寺蘊藏著厚重的歷史文化。 2020年,金牛區實現地區生產總值1329.9億元,按可比價計算,同比增長2.8%。。
客廳作為住宅中引人注目且彰顯個性的空間,既是待客也是家庭成員聚集的空間。所以,空間講究明亮、寬敞、舒適就尤為重要。。

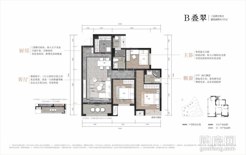
城投置地梧桐集B戶型(3室2廳,107平,南)

城投置地梧桐集C戶型(3室3廳,117平,南)

城投置地梧桐集D戶型(3室2廳,117平,南)