日期:
來源:購房網收集編輯:admin
旭輝恒基江與山理想生活輪廓清晰可見,速來圍觀!堅持房子是來住的,不是用來炒的。旭輝恒基江與山價格13500元/平米
放一張懶人椅,在家也能享受日光浴,旭輝恒基江與山,寬闊的空間,更加新穎的空間設計,減少動線阻礙,滿足更多的可能!旭輝恒基江與山地址成都市新都區香城小學旁,周邊教育四川音樂學院(新都校區)、香城中學,醫院成都市新都區中醫醫院、新都區人民醫院、。
尊重生活,尊重每一寸空間,全力打造出一個功能齊全、舒適度高的理想家。旭輝恒基江與山樓盤介紹旭輝恒基江與山集萃旭輝前二十二座江山系經驗,擇址新都區香城中心地段,享受周邊森林公園優質資源,享江山會館,打造人居范本,成就第二十三座江山系巨著。,售樓處地址成都市新都區香城小學旁,房屋類型住宅、別墅、公寓。
初心易得,始終難守!買房安家有一個好的物業不能說是可以受益終生也差不多!旭輝恒基江與山物業公司旭輝永升服務,戶型為36平-189平,裝修毛坯、精裝修

4室2廳2衛,大平層166平米(4室2廳,166平,南北)

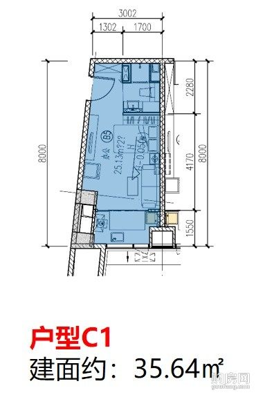
1室0廳1衛,(公寓)(1室,35.64平,南)

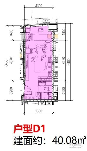
1室0廳1衛,(公寓)(1室,40.08平,南)